Save
Ask
Tour
Hide
Share
$120,000
2 Days On Site
135 Havre 4Boston, MA02128
For Sale|Condominium|Active
1
Bed
1
Total Bath
1
Full Bath
585
SqFt
$205
/SqFt
2026
Built
County:
Suffolk
Call Now: 617-648-9415
Is this the listing for you? We can help make it yours.
617-648-9415


Save
Ask
Tour
Hide
Share
Photos
Map
Nearby Listings
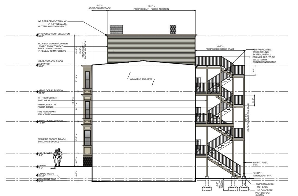
SKIP THE RED TAPE! Rare opportunity to acquire a fully engineered, permit-ready single unit development project in the heart of East Boston. Located next to prime Maverick Square neighborhood, the building has a pet-friendly fenced yard with BBQ area and is steps to Maverick and Airport T stops and the East Boston greenway and parks.The Project: Sale includes comprehensive, stamped architectural and structural plans 'shovel ready'. The approved design features a vertical addition (4th floor) to the existing footprint, maximizing the ~1,083 SF lot.
Save
Ask
Tour
Hide
Share
Listing Snapshot
Price
$120,000
Days On Site
2 Days
Bedrooms
1
Inside Area (SqFt)
585 sqft
Total Baths
1
Full Baths
1
Partial Baths
N/A
Lot Size
0.02 Acres
Year Built
2026
MLS® Number
73457504
Status
Active
Property Tax
$1
HOA/Condo/Coop Fees
$230 monthly
Sq Ft Source
N/A
Friends & Family
React
Comment
Invite
Recent Activity
| 3 days ago | Listing updated with changes from the MLS® | |
| 3 days ago | Listing first seen on site |
General Features
Acres
0.02
Number Of Stories
4
Property Sub Type
Condominium
Sewer
Public Sewer
SqFt Above
585
SqFt Total
585
Water Source
Public
Zoning
RES
Interior Features
Cooling
Central Air
Heating
Natural GasForced Air
Save
Ask
Tour
Hide
Share
Community Features
Association Dues
230
HOA Fee Frequency
Monthly
Listing courtesy of Daniel Groob of Prime Property Group

The property listing data and information, or the Images, set forth herein were provided to MLS Property Information Network, Inc. from third party sources, including sellers, lessors, landlords, and public records, and were compiled by MLS Property Information Network, Inc. The property listing data and information, and the Images, are for the personal, non-commercial use of consumers having a good faith interest in purchasing, leasing or renting listed properties of the type displayed to them and may not be used for any purpose other than to identify prospective properties which such consumers may have a good faith interest in purchasing, leasing or renting. MLS Property Information Network, Inc. and its subscribers disclaim any and all representations and warranties as to the accuracy of the property listing data and information, or as to the accuracy of any of the Images, set forth herein.
Last checked 2025-11-27 08:58 AM UTC

The property listing data and information, or the Images, set forth herein were provided to MLS Property Information Network, Inc. from third party sources, including sellers, lessors, landlords, and public records, and were compiled by MLS Property Information Network, Inc. The property listing data and information, and the Images, are for the personal, non-commercial use of consumers having a good faith interest in purchasing, leasing or renting listed properties of the type displayed to them and may not be used for any purpose other than to identify prospective properties which such consumers may have a good faith interest in purchasing, leasing or renting. MLS Property Information Network, Inc. and its subscribers disclaim any and all representations and warranties as to the accuracy of the property listing data and information, or as to the accuracy of any of the Images, set forth herein.
Last checked 2025-11-27 08:58 AM UTC
Neighborhood & Commute
Source: Walkscore
Disclosure: Community information and market data powered by Constellation Data Labs. Information is deemed reliable but not guaranteed.
Save
Ask
Tour
Hide
Share

Did you know? You can invite friends and family to your search. They can join your search, rate and discuss listings with you.